Annonce immobilière : vente du bâtiment de l'ancienne crèche

Compatibilità
Salva(0)
Condividi

La ville de Lourdes est propriétaire d’une Maison de lotissement des années 1955-1960, anciennement affectée à une crèche municipale située 14 rue du Pibeste à Lourdes. Conformément à sa stratégie de valorisation du patrimoine, la ville de Lourdes souhaite procéder à la cession de ce bâtiment.

Le bien est situé dans un secteur urbanisé et pavillonnaire au sein du quartier de Soum de Lanne. L’accès au bien se fait par la Rue du Pibeste.

Il est à proximité immédiate de l’axe Tarbes Argelès-Gazost desservi par le Boulevard d’Espagne ainsi que de l’avenue Maréchal Foch, axe traversant la ville du nord au sud.

Ce secteur est desservi par les transports en commun de la Communauté d’agglomération Tarbes Lourdes Pyrénées (CATLP).

Référence cadastrale :

Le bien se situe sur la parcelle section CW n°79.

Descriptif global du bâtiment :

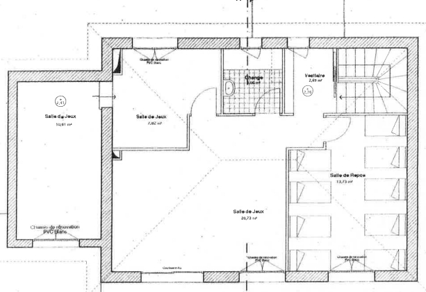
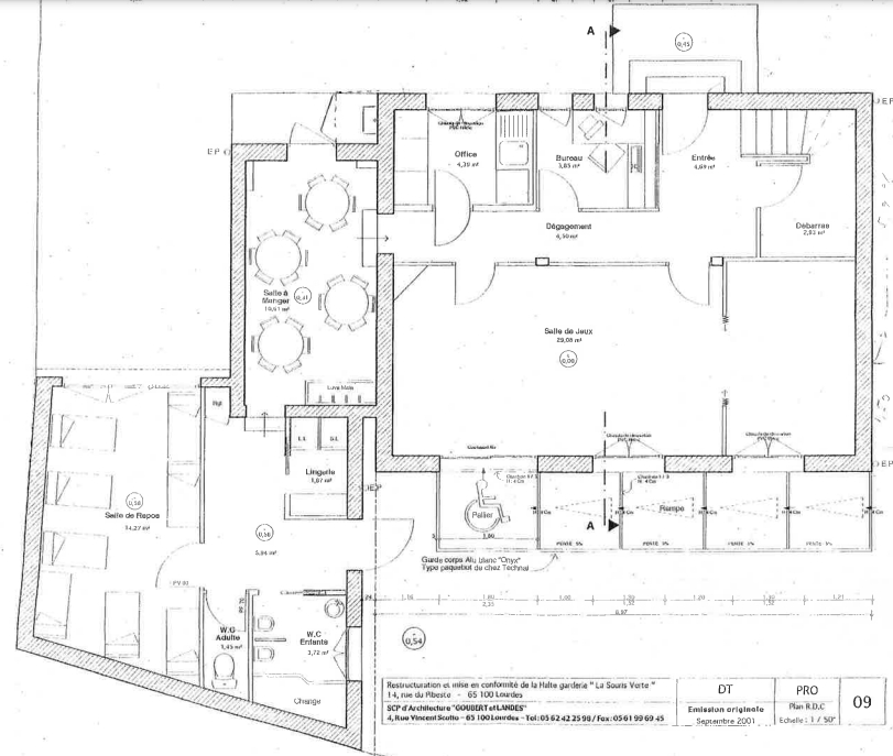
Le bien se compose d’un rez-de-chaussée et d’un étage.

Le revêtement de sol est en parquet et carrelage.

Les menuiseries sont en PVC double vitrage assurant une bonne isolation du bâtiment. Des grandes ouvertures donnent sur la cour intérieure arrière exposée au sud qui permettent un bon éclairage intérieur en lumière.

La toiture est en bon état et la couverture en tuiles.

Rez-de-chaussée : plans et visuels

1er étage : plans et visuels

Extérieur

L’extérieur de la maison offre un terrain arboré, clos de grillage sur muret avec quelques aires de jeux délimitées par des clôtures basses.

Exposition sud. Belle vue sur les montagnes alentours.

 Visites :

Des visites groupées ou individuelles seront organisées sur rendez-vous.

Montant de cession : 175 000 €

Contact :

Service juridique de la Ville de Lourdes

Tél. : 05 62 42 54 28

Courriel : theo.barzu@ville-lourdes.fr

Présentation des offres :

La transmission des offres devra être effectuée sous pli cacheté portant les références de la vente : « Offre pour le bâtiment de l’ancienne crèche  » avec la mention :

« NE PAS OUVRIR AVANT LA RÉUNION DU COMITE DE PILOTAGE »

Ces plis devront être transmis par lettre recommandée avec accusé de réception, ou remis en main propre contre récépissé à :

Service juridique de la Ville de Lourdes
2, rue de l’Hôtel de ville
65100 Lourdes

Tél. : 05 62 42 54 28

Les dossiers qui seraient remis sous enveloppe non cachetée, ne seront pas retenus. Ils seront renvoyés à leurs auteurs. La Ville de Lourdes ne pourra être tenue pour responsable des retards d’acheminement postal.

Date limite de remise des offres :

La date limite de remise des offres est fixée au 01/04/2025.

Liste des pièces à fournir :

Le candidat doit formuler une offre contenant obligatoirement les informations et documents suivants :

  • les modalités de financement de l’opération et une attestation de faisabilité bancaire.

Personnes physiques :

  • copie recto verso de la carte nationale d’identité,
  • copie d’un justificatif de domicile de moins de trois mois.

Personnes morales :

  • un extrait KBIS,
  • copie recto verso de la carte nationale d’identité du dirigeant ou du gérant de la structure.

Conditions de choix de l’offre :

  • En cas d’égalité des offres, le choix de la Ville de Lourdes portera sur le candidat ayant remis la proposition en premier (cachet ou récépissé de dépôt faisant foi).
  • La Ville se réserve le droit de rejeter une offre en cas d’incertitude liée à la crédibilité du dossier ou à la faiblesse des capacités financières exposées.
  • La commune se réserve le droit d’interrompre le processus de vente à tout moment et de ne pas donner suite aux offres reçues. Ce cas pourra intervenir si la Ville de Lourdes juge les offres trop faibles, sans contrepartie ni indemnisation pour les candidats. La vente pourra alors être poursuivie selon d’autres modalités.
  • Les candidats seront avisés de l’acceptation ou du rejet, non motivé, de leur offre par courrier, dans un délai de 10 jours à compter de la date de réunion du comité de pilotage. La vente du bien sera ensuite subordonnée à l’adoption d’une délibération en Conseil Municipal portant sur la cession du lot et à la signature d’un acte notarié.

Paiement :

Aucun paiement ne saura être remis au moment de la candidature.

Le paiement devra être effectué, en totalité, au notaire désigné par la commune, le jour de la signature de l’acte de vente. À défaut, ou en cas de manquement à la procédure, la commune pourra choisir un autre candidat.

Publié le 17/01/2025

Recapiti
jean-baptiste.latour@ville-lourdes.fr (Jean-Baptiste Latour)